Moi aussi, je m'y suis mis...
J'ai déjà une porte latérale dans ma caisse, elle fait 115 cm de large, et franchement, c'est chiant à ouvrir et à fermer, c'est lourd, surtout quand il y a du vent.
Et là, je suis en train de faire une porte plus petite dans cette porte existante, l'ouverture ne fera plus que 52 cm de large.
Comme j'ai fait un peu partout sur le camion en posant des coffres extérieurs, je récupère la tôle en alu sur la porte même.
Avant:

- DSC_0516.jpg (66.79 Kio) Consulté 9241 fois
Pendant:

- DSC_0048.jpg (53.71 Kio) Consulté 9241 fois
Le après suivra, je m'y colle dans les jours qui viennent.
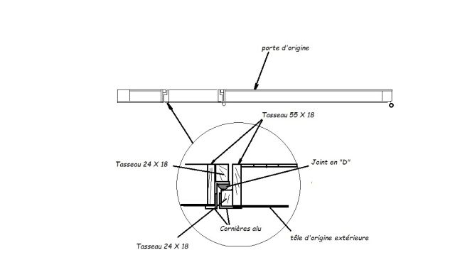
Je vous ai fait un petit crobard du comment je vais faire, la structure de cette porte sera en bois, comme celle des coffres. Les charnières sont de la marque "Litto", du bien costaud, et le système de fermeture sera comme à la maison ou presque, avec un verrou "Yale" ajouté en sus pour bien sécuriser le bigntz.

- détail porte.jpg (15.83 Kio) Consulté 9241 fois